Huur:Generaal Eisenhowerplein, 2288 AE Rijswijk - Foto
+18

Generaal Eisenhowerplein 2288 AE Rijswijk € 1.473,- /mnd

  • Appartement
  • 3 kamers
  • 2 slaapkamers
  • 1 badkamers
  • Bouwjaar 2006
  • 115 m² gebruiksoppervlakte
  • A Energielabel A

Beschrijving

RIJSWIJK-EISENHOWER RESIDENCE: Lichte 3-kamerwoning, gelegen op de twaalfde verdieping van het complex. De woning is per 01-01-2026 beschikbaar.

** Interesse? Reageer dan via de contactknoppen naast deze beschrijving **

BELANGRIJKSTE KENMERKEN:
• Foto's zijn van vergelijkbaar object
• Woning wordt kaal verhuurd
• Vrij uitzicht
• Gemeenschappelijke afgesloten fietsenberging
• Huisdieren en roken niet toegestaan

OMGEVING:
Het appartementencomplex bestaat uit 84 twee- en driekamerappartementen en 100 parkeerplaatsen gelegen op het dak van de naastgelegen bibliotheek. Het complex is gebouwd in 2006 en telt dertien bouwlagen. De woningen variëren in oppervlakte tussen ca. 66 m2 en 116 m2 (GBO) en hebben een balkon, loggia of serre. Op de begane grond en entresol bevindt zich een commerciële ruimte van ca. 895 m2 (VVO). Winkelcentrum In de Boogaard bevindt zich op loopafstand van het complex.

Het complex is zowel met eigen vervoer als openbaar vervoer uitstekend bereikbaar. Het appartementencomplex bevindt zich op loopafstand van het NS-Station Rijswijk. De rijksweg A4 ligt op ca. 10 autominuten van het complex.

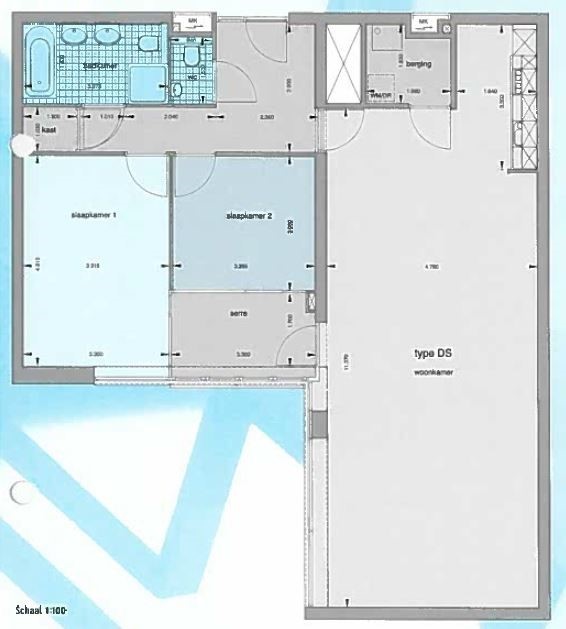
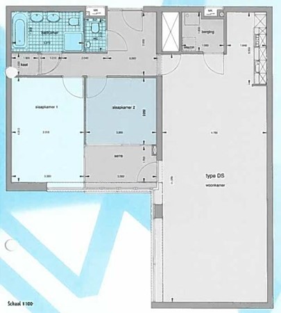
Indeling

BEGANE GROND:
Toegang via gesloten portiek met brievenbussen, bellentableau en lift.

TWAALFDE VERDIEPING:
Eigen entree, met separaat toilet met fonteintje.
Ruime volledig betegelde badkamer die voorzien is van een toilet, ligbad, douche, dubbele wastafel met spiegel.
Twee ruime slaapkamers.
De lichte woonkamer met open keuken geeft toegang tot de berging met wasmachine-aansluiting.
De keuken is voorzien van onder andere een oven, gasfornuis en vaatwasser.

OVERIGE FACILITEITEN:
BEGANE GROND: fietsen/scooterstalling
Privé parkeerplaatsen gelegen op het dak van de naastgelegen bibliotheek.

Bijzonderheden

• Beschikbaar per 01-01-2026
• De genoemde prijs is inclusief € 50,- servicekosten per maand
• De huurprijs is exclusief gas, water, elektra, tv/internet en gemeentelijke lasten
• De woning wordt kaal verhuurd
• Waarborgsom gelijk aan twee maanden huur
• Minimale huurperiode is 2 jaar
• Huren met garantsteller is mogelijk in overleg
• Huisdieren en roken niet toegestaan (blindengeleidehonden en andere assistentiehonden wel zijn toegestaan. Vermeld dit wel svp uitdrukkelijk bij interesse)
• Minimale inkomenseis ligt gelijk aan 3,5 keer de huur. Als stel ligt dit gelijk aan 4,5 keer de huur
• Foto's zijn van een vergelijkbaar object
• Jaarlijkse huurprijsverhoging, voor het eerst 1 jaar naar ingangsdatum huurovereenkomst conform CPI
• De woning heeft energielabel A
• De meest recente WOZ waarde van de woning bedraagt € 359.000,-

Er kunnen geen rechten worden ontleend aan de gegevens, tekst en foto's van dit object.

REAGEREN:
• Het Rental Rotterdam Team helpt je graag bij het vinden van je nieuwe thuis.
• Ben je geïnteresseerd en wil je een bezichtiging aanvragen? Reageer dan via de contactknoppen naast de beschrijving van deze woning.
• Wij plannen bezichtigingen in via een geautomatiseerd systeem. Hierom kan je dus alleen via de contactknoppen op de website reageren. Zo kunnen wij je beter en sneller helpen.
• Een verhuurmakelaar neemt dan zo spoedig mogelijk contact met je op.
• Bij voorbaat dank voor je begrip en medewerking.

Kaart

Kenmerken

Overdracht

Referentienummer
03111
Huurprijs
€ 1.473,- per maand (incl. servicekosten)
Borg
€ 2.846,-
Servicekosten
€ 50,- per maand
Inrichting
Niet gestoffeerd
Inrichting
Niet gemeubileerd
Aanvaarding
Per woensdag 1 januari 2025
Aangeboden sinds
Woensdag 5 november 2025

Bouw

Type object
Appartement, portiekflat
Soort bouw
Bestaande bouw
Bouwperiode
2006
Keurmerken
Energie prestatie advies
Isolatievormen
Dubbel glas

Oppervlaktes en inhoud

Woonoppervlakte
115 m²
Inhoud
288 m³

Indeling

Aantal bouwlagen
1
Aantal kamers
3 (waarvan 2 slaapkamers)
Aantal badkamers
1 (en 1 apart toilet)

Locatie

Ligging
Dichtbij openbaar vervoer
In centrum
Nabij school
Nabij snelweg
Nabij winkelcentrum

Energieverbruik

Energielabel
A

Uitrusting

Warm water
CV-ketel
Verwarmingssysteem
Centrale verwarming
Badkamervoorzieningen
Douche
Dubbele wastafel
Ligbad
Toilet
Parkeergelegenheid
Parkeerplaats

Media

Plattegronden